
\\気軽に、のんびり見に来てください。//
お子さま連れも大歓迎です
どうぞお気軽にお問合せください
東浜モデルハウスの
おすすめポイント
開放感と自由度を兼ね備えた
平屋スタイルの二階建て

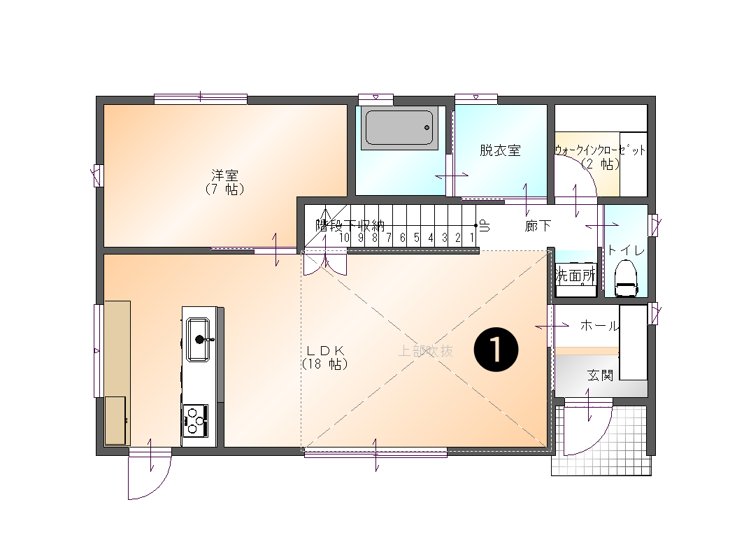
①吹き抜けリビング
大きな窓から光が差し込む18畳の吹き抜けリビング。家族や友人との素敵な時間を過ごせます。

②2階フリースペース
書斎・子供部屋・ゲストルームなど、ライフスタイルに合わせて使い方を変えられる自由な空間です。

③85.2坪のゆとりある敷地
乗用車4台をゆったり駐車でき、庭スペースではバーベキューや子どもの遊び場、趣味のスペースとしても活用できます。
ギャラリー
木の香りに包まれる瞬間、
なんだかホッとする。
家族で過ごす時間がもっと心地よくなる、そんな住まいです。
写真では伝わらない本当の心地よさを、
ぜひ体感してください。
東浜モデルハウス見学
ご予約の流れ
- ①お問い合わせ
- 「フォーム」「LINE」「お電話」のいずれかでご連絡ください。

- ②担当から希望の連絡手段にてご案内
- お客様のご希望の方法(電話・メール・LINE)で、
2営業日以内にご連絡いたします。

- ③当日:現地で担当者がご案内
- モデルハウスをご希望に合わせて30〜60分ご案内。
ご家族だけで落ち着いてご覧いただけます。

\\しつこい営業は一切いたしません//
お子さま連れも大歓迎です
どうぞお気軽にお問合せください

販売価格

合計:3,380万円(税込)
- 建物本体:2,190万円
- 土地:680万円
- 外構・屋外給排水工事:込み
間取り&データ


- 敷地面積 :281.26㎡(85.2坪)
- 延床面積 :89.42㎡ (27.1坪)
- 駐車場 :4台
- 主要採光面:南
性能と仕様
- 長期優良住宅取得
- 耐震等級3取得
- 断熱等級5取得
- ZEH基準相当
- 第3種換気採用
- 電気自動車専用
コンセント付き
- 照明機器、
エアコン1台付き - オール電化
- カーテン付
- 独立洗面台
- 食洗器乾燥機付き
- タンクレストイレ
物件概要
- 物件名/東浜モデルハウス
- 販売価格/3,380万円(税込)
- 所在地/大分県中津市大字東浜495-1
- 交通/[バス]東浜 停歩2分
- 建物面積/89.42m²(27.1坪) 土地面積/281.26m²(公簿) 85.07坪
- 構造/木造 二階建 瓦葺 建築確認番号/第R061422号
- 築年月/R7年4月
- 用途地域/第一種住居地域
- 建ぺい率/60%
- 容積率/200%
- 地目/宅地
- 接道/東側 分譲地内位置指定道路 幅員6.02m
- 設備/市水道・下水道・九州電力
- 引渡日/要相談
- 取引形態/ 売主 株式会社プランニング雅
アクセス
大分県中津市大字東浜 495-1
交通/[バス]東浜 停歩2分
\\気軽に、のんびり見に来てください。//
お子さま連れも大歓迎です
どうぞお気軽にお問合せください
東浜モデルハウス見学
ご予約の流れ
- ①お問い合わせ
- 「フォーム」「LINE」「お電話」のいずれかでご連絡ください。

- ②担当から希望の連絡手段にてご案内
- お客様のご希望の方法(電話・メール・LINE)で、
2営業日以内にご連絡いたします。

- ③当日:現地でご案内
- モデルハウスをご希望に合わせて30〜60分ご案内。
ご家族だけで落ち着いてご覧いただけます。

お好きなご予約方法をお選びください
LINEで予約(オススメ)
各種、ご予約 お問い合わせが
LINEで簡単に行えます。
まずは友達追加の上、
お気軽にメッセージをお送りください
電話で予約
電話受付時間/
9:00〜18:00
定休日/水曜日
モデルハウスご予約の旨、お伝えください。
担当者が丁寧にご案内いたします。
フォームで予約

ご入力いただいた情報は、
ご予約対応のみに使わせていただきますのでご安心ください。







